대지는 음성 저수지 주변의 민간 주거단지에 위치한다. 남측과 서측에 도로가 있으며, 대지는 도로에서 한 개 층 높이 위에 있다. 대지의 형태는 불규칙한 모양을 하고 있다.
대지의 남서 측에 있는 저수지가 보이도록 건물을 배치했다. 대지의 북서 측은 대지보다 높아서 주변이 녹지로 둘러 싸여진 조건이다. 북서 측에는 나라에서 관리하는 공원이 있는데, 건물의 배치에 주요 고려사항으로 작용했다. 남측의 도로에서 지하로 진입하는 주차장 공간을 활용하여 이것을 최대한 이용하여 주차를 가능하게 했다.
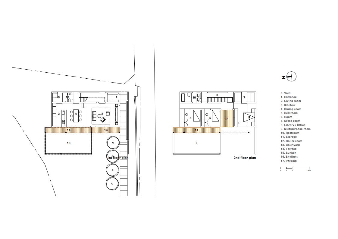
건축주 부부와 두 자녀를 위한 주택이다. 면적이 30여 평 남짓하고 크지 않은 조건이어서, 1층은 거실, 식당, 주방을, 2층에는 침실을 3개 계획하였다. 2층으로 올라가는 계단실은 2개 층 오픈 공간에 만들어서 내부의 동선을 풍요롭게 하는 역할을 한다. 이 공간은 채광, 환기, 시야 확보 등에 중요하다.
중정을 중심으로 거실, 주방, 식당, 침실, 2층 복도 등, 각각의 용도로 쓰인 공간을 연결한다. 건물은 전형적인 전원주택이므로, 야생동물의 침입을 고려하여 문을 열고 지낼 수 있는 옥외공간을 건물 전면에 유리 벽으로 계획하였다.
건물의 입면은 최대한 단순화했다. 다만, 마당 측에 면한 부분에 철재 형강으로 구조물을 만들어, 건물의 표정을 만드는 역할을 하고 있다. 이 구조물은 1층의 외부 중정을 구성하는 역할뿐 아니라. 2층의 캐노피 및 테라스로 사용하고 있다.
이 주택의 1층 거실은 식당, 주방과 천장 레벨은 동일하지만 거실의 바닥은 450mm 정도 내려가 있어 거실의 천장높이가 높아지도록 계획되었다. 이는 주변의 경사를 이용한 것이다. 또한, 현관에서 진입하는 곳에 2개 층 오픈 공간을 계획하여 내부 공간들이 다양한 느낌으로 연결되도록 하였다.
건물은 철근콘크리트 옹벽 구조이고, 전면부는 철골로 구성된다. 건물의 면적이 작은 이유로 슬래브 하부에 보를 만들지 않을 수 있었다. 또한, 옹벽 내부에 테두리 보를 만들어서 내부에 어떤 구조체가 노출되지 않도록 했다. 이는 천장고를 더 높일 수 있고, 벽에 간접조명을 만들 수 있게 한다.
주택의 특성상, 간접조명을 최대한 이용하고 있다. 실내 천장뿐 아니라, 실내외의 가구나 선반, 계단 등에 간접조명을 최대한 계획하였다. 간접조명만으로 생활이 충분하며, 침대에도 일체형으로 작은 조명을 설치하여 상황에 맞도록 조도를 조절할 수 있다. 또한, 조명은 전체적으로 전구색을 채택하여 더 은은한 느낌을 준다.
건물의 디자인과 실내 분위기와 일치하도록 하기 위해서는 설계자가 내부 인테리어와 가구까지 디자인해야 한다. 하지만, 공사비가 증가하는 원인이 되기 때문에 전체를 일체형으로 설계 시공하기는 쉽지 않다. 하지만, 건축주도 이에 동의하여 싱크대, 식탁, 탁자, 옷장, 침대, 책상까지 디자인하여 더 근사한 주택을 완성할 수 있었다.
대지는 음성 저수지 주변의 민간 주거단지에 위치한다. 남측과 서측에 도로가 있으며, 대지는 도로에서 한 개 층 높이 위에 있다. 대지의 형태는 불규칙한 모양을 하고 있다.
대지의 남서 측에 있는 저수지가 보이도록 건물을 배치했다. 대지의 북서 측은 대지보다 높아서 주변이 녹지로 둘러 싸여진 조건이다. 북서 측에는 나라에서 관리하는 공원이 있는데, 건물의 배치에 주요 고려사항으로 작용했다. 남측의 도로에서 지하로 진입하는 주차장 공간을 활용하여 이것을 최대한 이용하여 주차를 가능하게 했다.
건축주 부부와 두 자녀를 위한 주택이다. 면적이 30여 평 남짓하고 크지 않은 조건이어서, 1층은 거실, 식당, 주방을, 2층에는 침실을 3개 계획하였다. 2층으로 올라가는 계단실은 2개 층 오픈 공간에 만들어서 내부의 동선을 풍요롭게 하는 역할을 한다. 이 공간은 채광, 환기, 시야 확보 등에 중요하다.
중정을 중심으로 거실, 주방, 식당, 침실, 2층 복도 등, 각각의 용도로 쓰인 공간을 연결한다. 건물은 전형적인 전원주택이므로, 야생동물의 침입을 고려하여 문을 열고 지낼 수 있는 옥외공간을 건물 전면에 유리 벽으로 계획하였다.
건물의 입면은 최대한 단순화했다. 다만, 마당 측에 면한 부분에 철재 형강으로 구조물을 만들어, 건물의 표정을 만드는 역할을 하고 있다. 이 구조물은 1층의 외부 중정을 구성하는 역할뿐 아니라. 2층의 캐노피 및 테라스로 사용하고 있다.
이 주택의 1층 거실은 식당, 주방과 천장 레벨은 동일하지만 거실의 바닥은 450mm 정도 내려가 있어 거실의 천장높이가 높아지도록 계획되었다. 이는 주변의 경사를 이용한 것이다. 또한, 현관에서 진입하는 곳에 2개 층 오픈 공간을 계획하여 내부 공간들이 다양한 느낌으로 연결되도록 하였다.
건물은 철근콘크리트 옹벽 구조이고, 전면부는 철골로 구성된다. 건물의 면적이 작은 이유로 슬래브 하부에 보를 만들지 않을 수 있었다. 또한, 옹벽 내부에 테두리 보를 만들어서 내부에 어떤 구조체가 노출되지 않도록 했다. 이는 천장고를 더 높일 수 있고, 벽에 간접조명을 만들 수 있게 한다.
주택의 특성상, 간접조명을 최대한 이용하고 있다. 실내 천장뿐 아니라, 실내외의 가구나 선반, 계단 등에 간접조명을 최대한 계획하였다. 간접조명만으로 생활이 충분하며, 침대에도 일체형으로 작은 조명을 설치하여 상황에 맞도록 조도를 조절할 수 있다. 또한, 조명은 전체적으로 전구색을 채택하여 더 은은한 느낌을 준다.
건물의 디자인과 실내 분위기와 일치하도록 하기 위해서는 설계자가 내부 인테리어와 가구까지 디자인해야 한다. 하지만, 공사비가 증가하는 원인이 되기 때문에 전체를 일체형으로 설계 시공하기는 쉽지 않다. 하지만, 건축주도 이에 동의하여 싱크대, 식탁, 탁자, 옷장, 침대, 책상까지 디자인하여 더 근사한 주택을 완성할 수 있었다.